Používame cookies

Súbory cookie a ďalšie technológie sledovania používame na zlepšenie vášho zážitku z prehliadania našich webových stránok, na to, aby sme vám zobrazovali prispôsobený obsah a cielené reklamy, na analýzu návštevnosti našich webových stránok a na pochopenie toho, odkiaľ naši návštevníci prichádzajú. Viac info

Na prenájom skladový priestor v Stupave

Popis nehnuteľnosti

Zdieľať na Facebooku

Moderný maklér ponúka na prenájom skladový priestor v Stupave. Parkovanie je možné priamo v priestore a v okolí je možné parkovať aj nákladné vozidlá.

Hala:

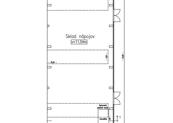
Podlahová plocha: 953 m2
Výška: 11,54 m

Dispozícia:

Dispozícia pozostáva zo sociálnych zariadení, technickej miestnosti, typizovanej plastovej bunky ako kancelárie, 2 miestností o rozlohe 18m2 a 15m2, ktoré môžu slúžiť ako odkladací priestor. Skladovo-výrobné priestory sú vybavené 2x garážovou bránou zpredu a zboku a dverami.

Lokalita:

Objekt je situovaný v širšom centre Stupavy, nachádza sa v bývalom priemyselnom areáli, ktorý prechádza revitalizáciou. K objektu je dobré dopravné napojenie. V okolí nájdete jedáleň, obchod, fitnes centrum, kaviareň a služby.

Cena:

5129,25€/mesiac + DPH + energie (voda a vykurovanie fakturované samostatne, elektrina 50€/mesiac v prípade využívania iba osvetlenia)

V cene je zahrnuté:

Provízia realitnej kancelárie a poskytnutie komplexných realitných a právnych služieb – vypracovanie nájomnej zmluvy. Všetky ďalšie informácie Vám rád poskytnem pri osobnej prehliadke alebo telefonicky.
Erik Vávra - 0944 523 833

Informácie o nehnuteľnosti sú uverejnené so súhlasom a vedomím majiteľa.

Vlastnosti

Status:
aktívne
Vlastníctvo:
osobné
Úžitková plocha:
953 m2
Zastavaná plocha:
953 m2
Stav:
pôvodný stav
5 129,25 €/mesiac
Ulica: ulica
Obec: Stupava
Okres: Malacky
Kraj: Bratislavský kraj
Druh: Objekty
Typ: Prenájom
Typ objektu: Sklad

Radi Vám poradíme

Podobné nehnuteľnosti