Používame cookies

Súbory cookie a ďalšie technológie sledovania používame na zlepšenie vášho zážitku z prehliadania našich webových stránok, na to, aby sme vám zobrazovali prispôsobený obsah a cielené reklamy, na analýzu návštevnosti našich webových stránok a na pochopenie toho, odkiaľ naši návštevníci prichádzajú. Viac info

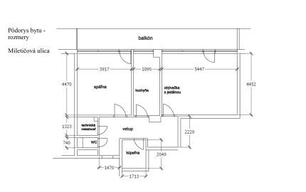
ZNÍŽENÁ CENA:Na predaj 2-izbový byt s loggiou na Miletičovej ulici v Bratislave

Podobné nehnuteľnosti