Používame cookies

Súbory cookie a ďalšie technológie sledovania používame na zlepšenie vášho zážitku z prehliadania našich webových stránok, na to, aby sme vám zobrazovali prispôsobený obsah a cielené reklamy, na analýzu návštevnosti našich webových stránok a na pochopenie toho, odkiaľ naši návštevníci prichádzajú. Viac info

Na predaj 6-izbové rodinné sídlo v Šamoríne

Popis nehnuteľnosti

Zdieľať na Facebooku

Moderný maklér ponúka na predaj priestranné 6-izbové rodinné sídlo na ulici Vodárenská v Šamoríne, len 17 km od Bratislavy. Nehnuteľnosť sa nachádza v tichej slepej ulici v najprestížnejšej rezidenčnej časti mesta. Dom prešiel kompletnou rekonštrukciou v roku 2023 a ponúka luxusné rodinné bývanie s veľkorysým pozemkom. K dispozícii je priestranný pozemok, garáž pre štyri veľké autá a bohaté možnosti parkovania – 2 miesta pri príjazde do dvora, 4 miesta vo dvore a 7 parkovacích státí pred domom.



Výmery: 



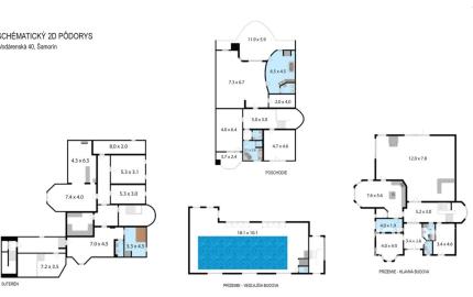
Úžitková plocha: 676 m²

Pozemok: 1000 m²

Suterén: 371 m²

IS: mestský vodovod + vlastná studňa, kanalizácia, elektrina, plyn, internet, káblová TV



Dispozícia: 



Dom disponuje premyslenou dispozíciou rozloženou na troch podlažiach. V suteréne sa nachádza spoločenská miestnosť s krbom a biliardom, fitnes, technické miestnosti pre dom, ako aj rozsiahle skladové priestory. Na prízemí je situovaná vstupná hala, pracovňa, kuchyňa s komorou a jedálňou s východom na terasu, priestranná obývacia izba s krbom a barom s priamym vstupom na druhú terasu, hosťovská izba, samostatné WC, kúpeľňa a garáž pre štyri autá. Poschodie ponúka dve samostatné izby využiteľné ako spálne alebo detské izby, kúpeľňu, samostatné WC a veľkorysú „master bedroom“ s vlastnou kúpeľňou, WC a východom na terasu. Nehnuteľnosť disponuje tiež vlastnou saunou. Záhrada je orientovaná na juh, čo zabezpečuje dostatok slnečného svetla počas celého dňa.



Zariadenie: 



Nehnuteľnosť sa predáva čiastočne zariadená – nábytok a vybavenie na mieru z masívneho dreva, kuchynská linka s granitovou pracovnou doskou, vstavané spotrebiče, v obývacej izbe otvorený krb s prieduchmi do horných izieb, murovaný bar, klimatizácia, kamerový systém, alarm.



Technický stav: 



Rodinné sídlo bolo postavené a skolaudované v roku 2004, pričom v roku 2023 prešlo kompletnou rekonštrukciou zahŕňajúcou obnovu fasády, čistenie a impregnáciu strechy Bramac, výmenu podláh, sanáciu pivníc, nové izolácie na balkónoch a terasách, pokládku nového trávnika a zámkovej dlažby. Dom je vybavený drevenými eurooknami a dverami, pričom podlahy tvoria kombinácie granitu, žuly a mramoru. Všetky podlažia sú vykurované podlahovým kúrením napojeným na plynový kotol Buderus, doplnený o solárne panely a fotovoltaiku. Nehnuteľnosť disponuje energetickým certifikátom triedy A a na pozemku sa nachádzajú dva naddimenzované trativody so zdržami po 16 m³ na odvádzanie dažďovej vody.



Lokalita: 



Šamorín je dynamicky sa rozvíjajúce mesto s kompletnou občianskou vybavenosťou a priamym diaľničným napojením na Bratislavu (12 minút jazdy autom). Nehnuteľnosť sa nachádza v prestížnej lokalite na Vodárenskej ulici – tichej slepej ulici s novostavbami. V bezprostrednej blízkosti sa nachádza športovo-rekreačný rezort X-Bionic® Sphere s elitnými športoviskami, wellness centrom, aquaparkom, jazdeckými zariadeniami a špičkovou gastronómiou. Okolie ponúka množstvo možností na rekreáciu, šport aj rodinný život.



Názor makléra:



Ponuka je výnimočná svojou veľkorysou rozlohou, luxusným interiérom a rozsiahlym pozemkom s množstvom možností využitia. Vďaka polohe v exkluzívnej časti Šamorína s výbornou dostupnosťou do Bratislavy je ideálnym riešením pre klientov, ktorí hľadajú prestížne rodinné sídlo alebo viacgeneračné bývanie. Vhodné pre náročnú rodinu s deťmi, ktorá ocení priestor, komfort a súkromie, prípadne ako rezidencia pre kombináciu bývania a reprezentácie.



Cena:



580.000 €



V cene je zahrnuté: 



Provízia realitnej kancelárie a právny servis – vypracovanie rezervačnej zmluvy a kúpnej zmluvy s návrhom na vklad, poplatok za vklad do katastra nehnuteľností a overenie podpisov u notára. V prípade záujmu zabezpečíme rychle a nezávislé poradenstvo v oblasti financovania kúpy a získanie najvýhodnejších podmienok pre hypotekárny úver podľa podmienok kupujúceho. Všetky ďalšie informácie Vám radi poskytneme pri osobnej prehliadke alebo telefonicky. 

Ing. Kristián Kopp – 0910 118 284



Informácie o nehnuteľnosti sú zverejnené so súhlasom a vedomím vlastníka.


Vlastnosti

Status:
aktívne
Vlastníctvo:
osobné
Plocha pozemku:
1000 m2
Úžitková plocha:
676 m2
Zastavaná plocha:
676 m2
Stav:
úplne prerobený
Typ výbavy:
čiastočne vybavený
Garáž:
áno
Rok poslednej rekonštrukcie:
2023
Inžinierske siete:
áno
Voda:
áno
Elektrika:
áno
Plyn:
áno
Kanalizácia:
áno
Voda - na pozemku - vodný zdroj:
áno
Voda - na pozemku - studňa:
áno
Elektrika - na pozemku:
áno
Plyn - na pozemku:
áno
Kanalizácia - na pozemku - kanalizácia:
áno
Internet:
áno
Káblová TV:
áno

Hypotekárna kalkulačka

Video

580 000 €
Ulica: Vodárenská
Obec: Šamorín
Okres: Dunajská Streda
Kraj: Trnavský kraj
Druh: Domy
Typ: Predaj
Typ domu: Rodinný dom

Radi Vám poradíme

Podobné nehnuteľnosti