Používame cookies

Súbory cookie a ďalšie technológie sledovania používame na zlepšenie vášho zážitku z prehliadania našich webových stránok, na to, aby sme vám zobrazovali prispôsobený obsah a cielené reklamy, na analýzu návštevnosti našich webových stránok a na pochopenie toho, odkiaľ naši návštevníci prichádzajú. Viac info

Na predaj moderný 4-izbový byt v novej rezidencii - Bývanie pri mlyne

Popis nehnuteľnosti

Zdieľať na Facebooku

Moderný maklér ponúka vo výhradnom zastúpení na predaj moderný 4-izbový byt predstavujúci ideálnu kombináciu pohodlia rodinného bývania s výhodami bytu v atraktívnej lokalite blízko centra kúpeľného mesta Piešťany, v novej rezidencii Bývanie pri mlyne vo Veľkom Orvišti.

Byt:

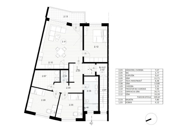
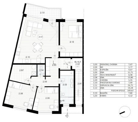
Podlahová plocha: 113,8 m²
Pivnica: 4,12 m²
Loggia: 7,8 m²

Dispozícia bytu:

Do domu vstupujete cez bezpečnostné dvere, kde sa hneď oproti nachádza praktická pivničná kobka. Na prvé poschodie vedie pohodlné schodisko, ktoré vás privedie priamo k bytu. Za vstupnými dverami sa ocitnete v priestrannej chodbe, z ktorej je rozmiestnený celý byt. Priamo oproti vchodu sa nachádza samostatná toaleta a technická miestnosť. Po pravej strane vstúpite do veľkej obývacej izby prepojenej s kuchyňou. Z obývacej časti je prístup na loggiu, ktorý poskytuje príjemný vonkajší priestor a zároveň zabezpečuje interiér prirodzeným svetlom. Vedľa obývačky je situovaná spálňa. Na ľavej strane od vstupu nájdete kúpeľňu spojenú s WC a vedľa dve detské izby. Táto premyslená dispozícia spája funkčnosť s komfortom a ponúka ideálne zázemie pre rodinný život.

Vybavenie:

Byt sa predáva ako holobyt vo vymaľovanom stave s novými vypínačmi a zásuvkami, pripravený na dokončenie podľa individuálnych potrieb a preferencií nového majiteľa. V kúpeľni je pripravená inštalácia pre Geberit systém a prípojky pre sprchový kút alebo vaňu podľa výberu budúceho vlastníka. Táto koncepcia umožňuje novému majiteľovi dokončiť byt presne podľa svojich predstáv a požiadaviek v štandardnom vyhotovení.

Technický stav:

Ide o novostavbu developerského projektu, ktorého 1. etapa výstavby už bola skolaudovaná a čaká na nasťahovanie nových majiteľov. Nehnuteľnosť spĺňa najvyššie štandardy energetickej efektívnosti triedy A0. O vaše pohodlie sa stará teplovodné podlahové kúrenie s vlastným tepelným čerpadlom, ktoré v letných mesiacoch slúži aj na chladenie. Každý byt má svoje samostatné čerpadlo, čo prináša nielen komfort, ale aj výrazne nízke mesačné náklady. Stavba je realizovaná z tehál s dvojitými akustickými stenami medzi bytmi, čo garantuje pokoj a súkromie. Fasáda je zateplená minerálnou vlnou a osadené sú veľkoformátové plastové okná s izolačným trojsklom, vďaka ktorým je interiér presvetlený a zároveň energeticky úsporný. Nehnuteľnosť je napojená na obecnú vodu a kanalizáciu a pripravená na inštaláciu fotovoltaických panelov. Ku každému bytu je potrebné dokúpiť si parkovacie miesto, ktoré je možné v prípade potreby napojiť na wallbox pre nabíjanie elektromobilu. Vysoký štandard bývania podčiarkujú aj predprípravy na klimatizáciu, vonkajšie žalúzie, kamerový systém, alarm a optické pripojenie na internet. 1. etapa výstavby už bola skolaudovaná a čaká na nasťahovanie nových majiteľov.

Lokalita:

Táto lokalita ponúka ideálne podmienky pre pohodlný život celej rodiny s dostupnosťou všetkej potrebnej občianskej vybavenosti priamo v obci - nájdete tu školu a škôlku s voľnými kapacitami aj pre nových obyvateľov, nové, moderné detské ihrisko, futbalový štadión, potraviny, rybník a obecný úrad s matrikou, pričom do okresného mesta Piešťany sa dostanete pohodlne za 5 minút autom. V širšom okolí do 20 minút autom máte k dispozícii bohaté možnosti rekreácie a športu - vodné športy ako kanoe, jachting, člnkovanie, windsurfing či rybolov na Sĺňave, vodnolyžiarsky vlek na Ratnovskej zátoke s piesočnatou plážou a palmami, Ekopark s kontaktnou zoo a veľkým detským ihriskom. Pre zimné radovánky môžete využiť lyžovanie na Bezovci alebo v Kálnici, kde v letných mesiacoch priaznivci adrenalínu ocenia bike park. Milovníci histórie si prídu na svoje vďaka dostupnosti blízkych hradov Beckov, Čachtice a Tematín, ktoré ponúkajú fascinujúce spoznávanie našej bohatej minulosti.

Názor makléra:

Tento výnimočný byt v rodinnom dome predstavuje ideálnu kombináciu pohodlia rodinného bývania s výhodami bytu, pričom sa nachádza v atraktívnej lokalite blízko centra kúpeľného mesta, ale zároveň dostatočne vzdialene od jeho ruchu a zhonu. Veľkorysé priestory poskytujú komfortný životný štandard, zatiaľ čo vlastný zdroj vykurovania a absencia správcu bytového domu zaručujú výrazne nižšie mesačné náklady na bývanie. Takáto nehnuteľnosť sa na trhu bývania vyskytuje len zriedka a predstavuje jedinečnú príležitosť pre tých, ktorí hľadajú kľudné bývanie s vysokým štandardom pohodlia v blízkosti všetkej občianskej vybavenosti kúpeľného mesta. 

Cena: 

232.800 €
Mesačné náklady sú veľmi nízke, očakávajú sa na úrovni 80€.

V cene je zahrnuté:

Provízia realitnej kancelárie a právny servis – vypracovanie rezervačnej zmluvy a kúpnej zmluvy s návrhom na vklad, poplatok za vklad do katastra nehnuteľností a overenie podpisov u notára. V prípade záujmu zabezpečíme rychle a nezávislé poradenstvo v oblasti financovania kúpy a získanie najvýhodnejších podmienok pre hypotekárny úver podľa podmienok kupujúceho. Všetky ďalšie informácie Vám radi poskytneme pri osobnej prehliadke alebo telefonicky.
Ing. Lenka Miklovičová, RSc. – 0902616542

Informácie o nehnuteľnosti sú zverejnené so súhlasom a vedomím vlastníka.

Vlastnosti

Status:
aktívne
Vlastníctvo:
osobné
Úžitková plocha:
113.8 m2
Zastavaná plocha:
113.8 m2
Stav:
novostavba
Loggia:
áno
Pivnica:
áno
Pozícia:
vyššie poschodie
Vykurovanie - podlahové:
áno
Optická sieť:
áno

Hypotekárna kalkulačka

Video

232 800 €
Ulica: -
Obec: Veľké Orvište
Okres: Piešťany
Kraj: Trnavský kraj
Druh: Byty
Typ: Predaj
Typ bytu: 4-izbový byt

Radi Vám poradíme

Podobné nehnuteľnosti